Concepcion Arenal 4000 7 E | CTT0059

FICHA

  • Producto Departamento Dúplex
  • Operación Venta
  • Barrio Chacarita
  • Ambientes 3
  • Dormitorios 2
  • Baños 2
  • Estado En Obra
  • Disposición Frente
  • Sup. Propia 89,00 m2
  • Sup. Cubierta 82,00 m2
  • Sup. Semi Cubierta 7,00 m2

U$S 310.000

VENTA

Concepcion Arenal 4000 7 E

Chacarita

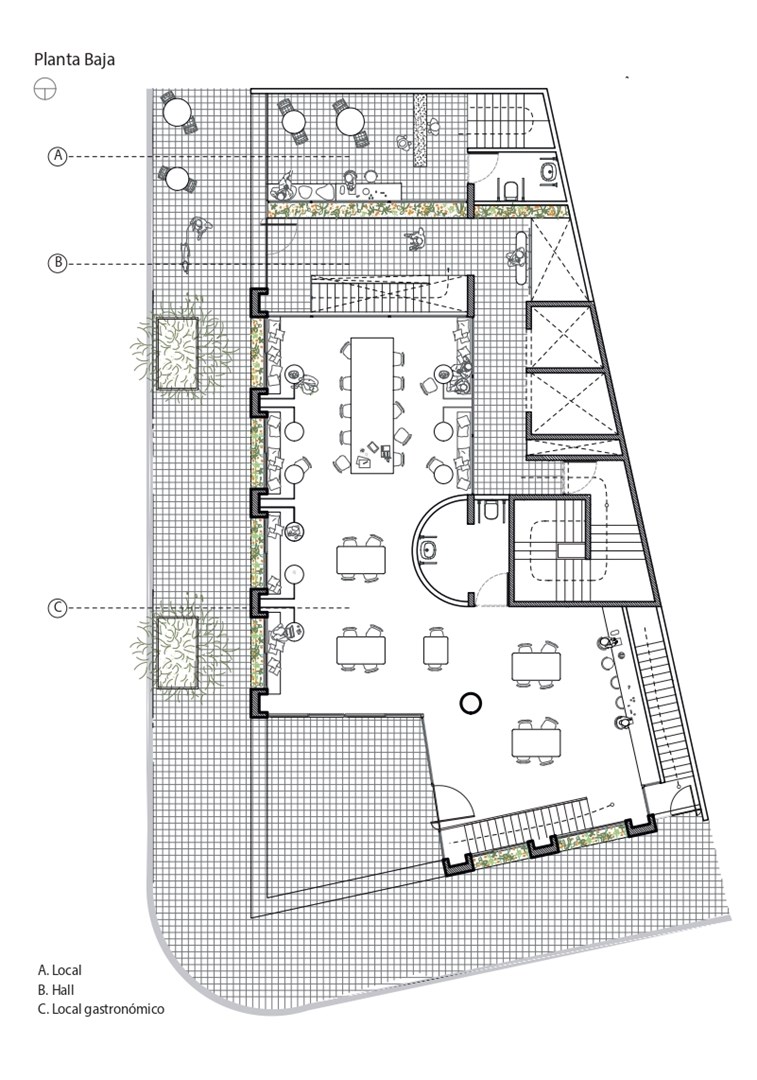
Concepción Arenal 4001 es el nuevo proyecto del estudio BAAG. El edificio fue proyectado como condensador de la vida urbana del barrio, pretendiendo aportar al entorno cultural, gastronómico y social emergente del barrio de Chacharita. La planta baja del edificio propone una relación directa con la ciudad, sumando, a través de la actividad gastronómica, un lugar de encuentro dentro de la matriz de actividades en expansión que el barrio ofrece. En el primer piso se encuentra el área de unidades destinados a estudios y oficinas, articuladas con el espacio público por medio de una galería de acceso y un corredor exterior que otorga un fuelle con la ciudad. A partir del segundo piso, el edificio contiene las unidades de vivienda permanentes o temporarias articuladas por diferentes tipologías. Unidades de un ambiente hasta cinco conforman el cuerpo edilicio. Tipologías en dúplex materializan el vértice del volumen construido. Un corredor abierto dentro del edificio permite el ingreso a todas las unidades, favoreciendo la iluminación y la ventilación cruzada de las diferentes tipologías. Áreas de permanencia y encuentro son parte del sistema de circulación. En el remate del edificio se proponen espacios verdes, articulados con los bio-corredores de la ciudad, para las actividades comunes y de convivencia entre humanos y otras especies. BAAG, Buenos Aires Arquitectura Grupal, es un estudio que indaga en las nuevas formas de habitar y registra los ecosistemas locales, revalorizando su aporte a las diferentes formas de apropiación y habitabilidad de las ciudades. La oficina entiende a la arquitectura como práctica y pensamiento crítico, proponiendo producir, investigar, ensayar e innovar a partir del trabajo colectivo. BAAG ha realizado proyectos institucionales y de viviendas, proyectos de investigación, instalaciones culturales y concursos públicos. También ha sido invitado a brindar conferencias, realizar cursos y workshops en instituciones y universidades nacionales e internacionales. El espíritu grupal del estudio, permite trabajar en conjunto con diversos arquitectos y profesionales de otras disciplinas, realizando trabajos experimentales, concursos y charlas debate, apostando a construir y sistematizar la aplicación constante de un pensamiento crítico. FORMA DE PAGO: Anticipo 40% + 30 cuotas fijas USD. * Todas las características, vistas y amenidades están sujetas a cambio sin necesidad de notificación previa. Todas las medidas y superficies enunciadas son aproximadas y únicamente se indican de manera orientativa, quedando sujetas a eventuales cambios de acuerdo a las dimensiones que surjan del plano de subdivisión y mensura. Todas las imágenes y videos son meramente ilustrativos y toda la información provista en este sitio web no constituye ningún tipo de obligación contractual entre las partes. Ceratti Propiedades CUCICBA 8699 CMCPSI 6928


DETALLE DE LA PROPIEDAD

Amenitie: Pileta
Amenitie: Solarium
Ascensor: 2
Calefacción: Individual radiadores
Cantidad Pisos: 12
Deptos. por Piso: 5

ADICIONALES

Balcón
Luz
Internet

*Las descripciones arquitectónicas, valores de expensas, impuestos o servicios, fotos y medidas de las propiedades son aproximados. Los datos fueron proporcionados por el propietario y pueden no estar actualizados a la hora de la visualización de este aviso por lo cual pueden arrojar inexactitudes o discordancias con las que surjan de los las facturas, títulos o planos legales del inmueble. Se pondrá a disposición del interesado la documentación necesaria a fin de realizar las verificaciones respectivas previamente a la realización de cualquier operación, requiriendo por sí o sus profesionales la documentación que corresponda.

CONTACTO





Solicitá tu tasación !

Nuestro compromiso es acompañarte y brindarte todo lo necesario para lograr tu objetivo.

Ceratti Propiedades. COPYRIGHT 2026 CMCPSI 6928 / CUCICBA 8699

Desarrollado por LiderProp